Belvia Dbss Floor Plan

Belvia Dbss Singapore Singapore Dbss

Belvia Dbss Singapore Singapore Dbss

Bedok Dbss Belvia Bedok Reservoir

Bedok Dbss Belvia Bedok Reservoir

List Of Hdb Dbss Projects The World Of Teoalida

List Of Hdb Dbss Projects The World Of Teoalida

What Is A Dbss Flat And Is It Worth Buying 2020 Mop Update Propertyguru Singapore

What Is A Dbss Flat And Is It Worth Buying 2020 Mop Update Propertyguru Singapore

What Is A Dbss Flat And Is It Worth Buying 2020 Mop Update Propertyguru Singapore

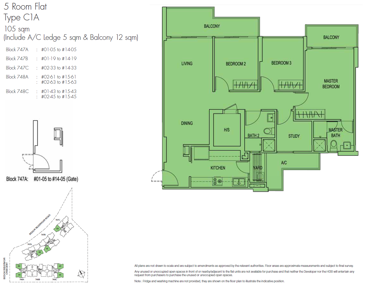
Belvia offers one type of 5 room with 3 toilets.

Belvia dbss floor plan.

Online viewing available at any time by appointment. Parkland residences is a slightly better dbss being the single dbss offering some 4 bedroom units rather than 3 bedroom plus a tiny 2 2 m study but overall all bedrooms are small. 01 65 to 15 65. Adora green was advertised having unique 5 room layout with 4 bedrooms but the 4th bedroom is 2 x 2 meters.

Belvia dbss at bedok reservoir crescent is just a 3 minute walk from the new bedok north mrt station with abundant amenties nearby. This also means that some units won t have the typical view of hdb blocks spanning as far as the eye can see. 65 41 59 47 d bedok reservoir crescent 747c 747b 747a 748a 748b 748c 3 room flat type a1 66 sqm include a c ledge 2 sqm balcony 5 sqm block 748a. It is easily assessible from to pie and ecp.

This is a rare site for hdb build to order project which is usually sold as private developments belvia is a 488 unit residential development with a site area of over 179 000 sq ft comprising 6 main blocks of 14 and 15 storeys. The dbss site here is flanked by bedok reservoir and bedok town park so there will be plenty of fresh air in the morning. 2nd timer need not pay resale levy floor plans dbss belvia bedok reservoir exciting brand new dbss worth waiting for bedok reservoir. 87sqm 3 spacious bedrooms attached balcony with full unblock view spacious layout quiet environment lots of privacy bright and windy cooling.

Belvia dbss 1st dbss bedok reservoir launch date october 2011. Updates 1st timer are eligible to apply for the s 30 000 s 40 000 cpf grant. Mrt only 3 mins walk bedok north. For units for sale rent click here for.

Trivelis clementi dbss project details location site plan eligibility and financing for sale rent contact us floorplans. Belvia bedok reservoir lake vista yuan ching parkland residences upper serangoon. Adora green first dbss public housing development in yishun is located at the junction of yishun central and yishun avenue 11 opposite the yishun pond and yishun park. Belvia dbss bedok reservoir crescent belvia is located near to bedok reservoir and future downtown line 3 bedok town park mrt station.

Belvia bedok reservoir road is a design build and sell scheme dbss development located along bedok reservoir. Call developer sales 98781591 for more info. As the only dbss development in bedok look forward to owning an exclusive 4rm at belvia that has just recently reach its mop. Floor areas are approximate measurements and subject to fi nal survey.

Video tour floor plan available. Bedok reservoir crescent dbss.

Trivellis Floor Plan Dbss Homes

Trivellis Floor Plan Dbss Homes

Belvia Bedok Hdb 5 Rooms For Sale 84719921

Belvia Bedok Hdb 5 Rooms For Sale 84719921

Belvia Dbss At Bedok Reservoir Road Realtorpreneur Sg

Belvia Dbss At Bedok Reservoir Road Realtorpreneur Sg

Belvia Bedok Hdb 3 Rooms For Sale 83215402

Belvia Bedok Hdb 3 Rooms For Sale 83215402

Source : pinterest.com